A Prefeitura publicou a licitação para a construção de 26 unidades habitacionais gratuitas do programa Moradia Digna, marcando um avanço importante na política de moradia do município. As casas serão construídas em um novo loteamento ao lado do bairro Erveiras, planejamento que amplia a área urbana e organiza o crescimento da cidade.
O projeto é financiado pelo Ministério das Cidades, com recursos indicados pelo deputado federal Zeca Dirceu. A Caixa Econômica Federal será a responsável pela seleção das famílias beneficiadas, seguindo os critérios da faixa 1 do Minha Casa Minha Vida, destinada a quem possui renda de até R$ 2.850,00. A lista de contemplados será divulgada pela Caixa Econômica através da Prefeitura nos próximos dias.
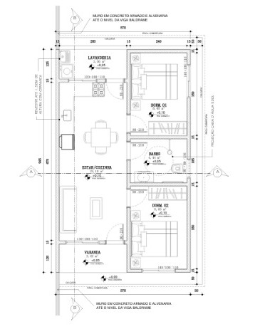
As moradias terão 53,87 m², com implantação em lotes de 8,25 x 23 metros. A proposta original previa 25 casas, mas o município reforçou sua contrapartida e garantiu a construção de mais uma unidade, totalizando 26.
Investimento detalhado:
R$ 3.250.000,00 — verba federal;
R$ 32.500,00 — trabalho técnico social;
R$ 906.000,00 — contrapartida municipal;
R$ 4.156.232,03 — valor total da obra.
A abertura da licitação formaliza o início do processo que levará à construção das unidades. Após a etapa de habilitação e contratação da empresa vencedora, começam as obras que vão resultar em moradias prontas, gratuitas e destinadas às famílias que mais precisam.
Informações via Assessoria de Comunicação








Deixe um comentário